GALLERY
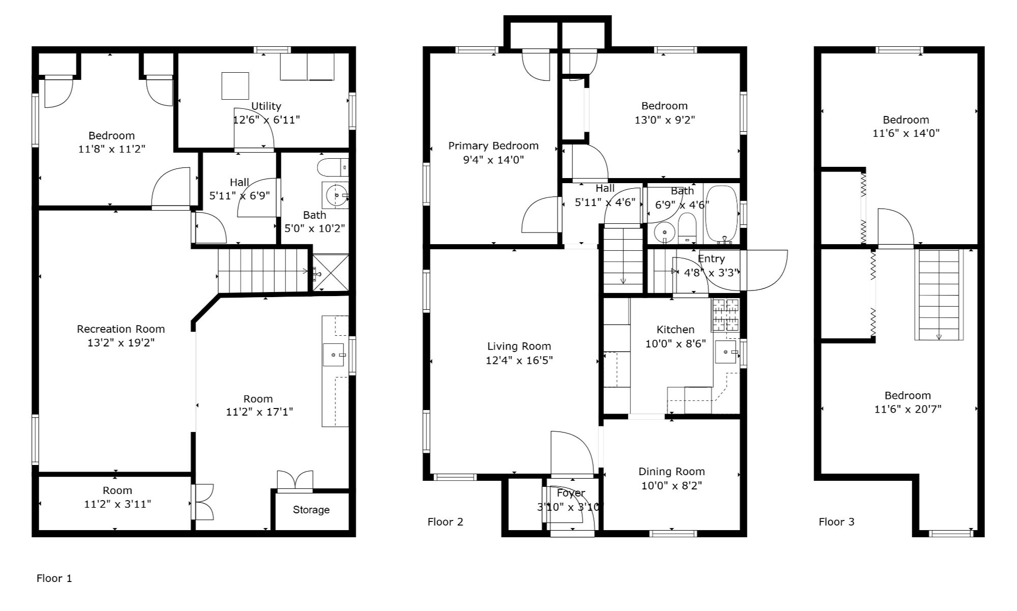
FLOOR PLAN

PROPERTY DETAIL
Key Details
Sold Price $660,0001.5%
Property Type Single Family Home
Listing Status Sold
Purchase Type For Sale
Square Footage 1, 075 sqft
Price per Sqft $613
Sold Date 05/22/25
Bedrooms 3
Full Baths 2
Year Built 1945
Lot Size 4,000 Sqft
Location
State NY
County Queens









