Welcome home! Look no further than this Gorgeous Split-level Style home in Freeport NY. A true entertainer’s delight, it features 4 bedrooms including a grand master bedroom, 2 Full baths, and a 1 Car attached Garage. The balcony-style hallway overlooks the living room, An eat-in kitchen with Stainless Steel Appliances & Granite Counter Tops. Laundry room with washer and dryer. A massive Craftsman-style Deck, and a large backyard that's perfect for entertaining your guests. A newly done driveway, Central Air, GAS cooking, Tankless wall-hung boiler, Updated plumbing, electric, roof, windows, and doors. Nothing left for you to do... Just unpack.
All located close to Shopping, Schools, Public Transportation & the Iconic Nautical Mile !!
All located close to Shopping, Schools, Public Transportation & the Iconic Nautical Mile !!
AERIAL VIEW
GALLERY
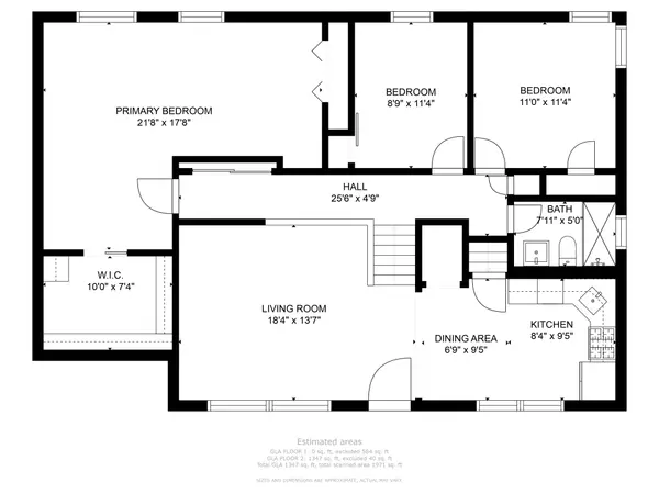
FLOOR PLAN
REQUEST A SHOWING
PROPERTY DETAIL
Key Details
Sold Price $650,0004.8%
Property Type Single Family Home
Listing Status Sold
Purchase Type For Sale
Square Footage 1, 421 sqft
Price per Sqft $457
Sold Date 09/09/22
Bedrooms 4
Full Baths 2
Year Built 1956
Annual Tax Amount $11,944
Lot Size 8,690 Sqft
Location
State NY
Rooms
Basement Crawl Space
Interior
Heating Natural Gas, Baseboard
Exterior
Garage Spaces 1


















